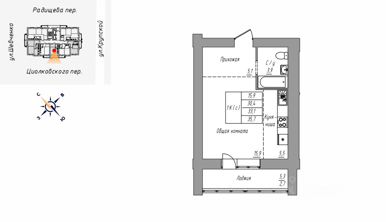
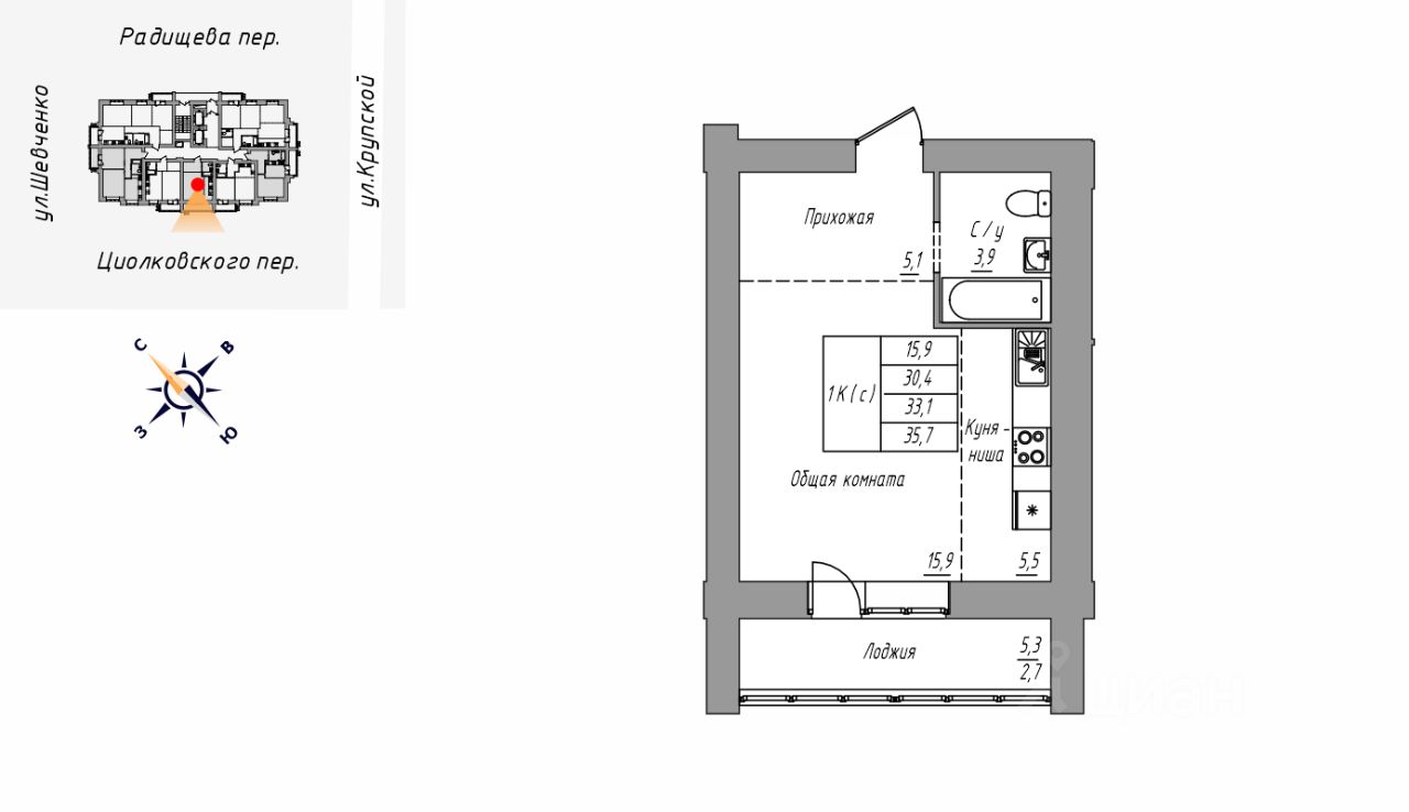
Продаётся 1-комнатная квартира в строящемся доме (Дом 1), срок сдачи: IV-кв. 2027, общей площадью 35.7 кв.м., на 10 этаже. Новый жилой комплекс ''На Крупской, 100'' от группы компаний ''Строительная Перспектива ПСК'' расположен по адресу: г. Барнаул, по ул. Крупской.