16 дек
Обн. сегодня
2
Новостройка, 4 кв. 2027
Продам 2-к
Железнодорожный район, Центр
Барнаул
8 220 000 ₽200 000 ₽ за м²
Чистая продажа
Квартира
- Общая площадь41 м²
- Тип собственностидоговор долевого участия
Дом
- Срок сдачи4 кв. 2027
- Этаж3 из 16
- Материал домакирпич
Описание
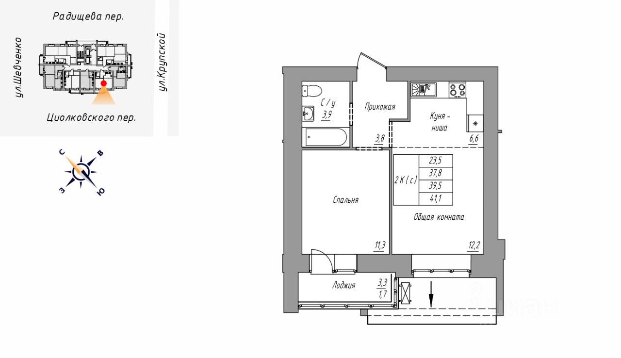
Продаётся 2-комнатная квартира в строящемся доме (Дом 1), срок сдачи: IV-кв. 2027, общей площадью 41.1 кв.м., на 3 этаже.
Контакты
Застройщик
Сити Трейд
Внешний пользователь
№116352689
Ипотечный калькулятор
Стоимость
₽
Первый взнос
₽
Срок кредита
лет
Процентная ставка
Проц. ставка
%
Ежемесячный платеж
61 745 ₽
Мин. доход
112 264 ₽
Сумма кредита
6 987 000 ₽
Один запрос в 8 банков
+2
Узнайте за 10 минут, какую сумму кредита вам одобрят банки




